ABOUT SUNCARE WAJIRO
With the meticulous care, we will help each person to be "suitable"
ROOM

全室オーシャンビューの2LDKタイプ
の居室の広さは福岡最大級
お一人でもご夫婦でもゆったりと
快適にお過ごしいただけます

居室
バルコニー

リビング窓やバルコニーからは
和白干潟を一望
ゆったりとシニアライフを
楽しむ悠々自適な空間

65室全てのお部屋の広さがほぼ同じの約60㎡(約18坪)の2LDKになります。福岡市内の介護付き有料老人ホームで、同一価格帯の広さは他にありません。

お一人様であれば、お部屋で絵を描いたり、音楽の練習をしたりなど趣味の時間に没頭頂けるような充分な広さとなります。
ご夫婦様であれば、寝室や収納にもたっぷりスペースをとることができ、快適な暮らしをご提供いたします。

車椅子でも不自由しない広さをベースに、非常呼び出しボタンなど、万一に備えた安心機器を設置しています。

※状態によっては介護居室に住み替えて頂く場合があります。その詳細については、「入居に関するご案内」に記載しております。

お部屋の様子を360°パノラマ
ビューでご覧いただけます。

バルコニーからは和白干潟を一望

居室・浴室・共用スペースイメージビデオ

各お部屋のトイレ、浴室、リビング、和空間の随所にナースコールを設置しております。
ベランダの窓は二重サッシとなっております。夏や冬のエアコン効率だけでなく、防音にも役立っています。

和室

リビングの一角に癒しの和空間

リラックス空間でくつろぎの時間を
お過ごしいただけます。

バリアフリー

広々としたバリアフリー設計

生活しやすいバリアフリー構造で、毎日を快適に楽しくお過ごしいただけます。

呼び出しボタン

呼び出しボタン完備

各お部屋、トイレ、浴室、随所にナースコールを設置しております。呼び出しがあれば、ヘルパーがすぐに駆けつけますので、安心してお使いいただけます。

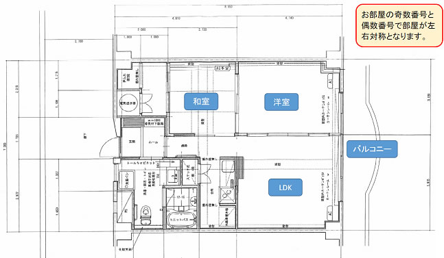
FLOOR PLAN
平面図
平面図

居室数・広さ

全71室(介護専用個室6部屋、居室夫婦室65部屋)
(個室:16.68㎡、夫婦室:~61.37㎡)

居室設備

トイレ/洗面台/浴室・キッチン (ご提案タイプ)/ナースコール/収納ウォークイン/給湯装置、納戸、エアコン、バルコニー、和室

洋室

洋室

バルコニーから明るい日が差し込む
広々とした居室です。

キッチン

キッチン

広々とした安心安全のIHキッチンで
お料理も楽しめます。

玄関ホール

玄関ホール

広めの玄関にたくさんの収納が
可能なシューズボックスがあります。

ウォークインクローゼット

ウォークインクローゼット

高い収納力を発揮する
ウォークインクローゼットです。

トイレ

トイレ

室内に手すりがあり、座る時・
立ち上がる時にも安心です。

浴室

浴室

浴槽には呼び出しボタンがあり
ゆったりと安心して入浴することができます。

空室状況
BATHROOM

ご入居者の方に合わせた充実の入浴設備
開放感に満ちた大浴場で心も体もリラックス

大浴場(女性)

広々とした大浴場(女性)

サンケア和白は入浴設備も充実。各住居のお風呂はもちろん、広々とした開放感あふれる大浴場もご用意。

大浴場(男性)

広々とした大浴場(男性)

個別浴室

個別浴室

人目を気にせずゆったりできる個室の浴場も完備。

浴場エントランス

浴場エントランス

あたたかみのある広々とした浴場エントランス。

BATHROOM

さまざまなスタイルの入浴ができる特別浴室

オープン型シャワーバス

オープン型シャワーバス

OG Wellness社の最新モデル「セレーノHK-3100」を導入。寝たままの姿勢で心肺負担の少ないシャワー入浴スタイル。スイッチ操作一つで、天井からボディソープが混入したお湯を吐出させることができます。身体を温めながら、入浴中に洗身をおこなうことができます。

大型サイドフェンス

大型サイドフェンス

オープン型シャワーバスには、足から肩までの大型サイドフェンスが準備されています。
大型なサイドフェンスがご利用者に安心を、介助者に安全を与えます。さらに、サイドフェンスの内側にもやわらかいマットを標準装備。不意に動いても、マットがご利用者をやさしく守ります。

自立サポート入浴

自立サポート入浴

OG Wellness社の自立サポート入浴バス「ボランテ HK-771」を導入。
浴槽前面の電動ドアが昇降するため、浴槽のふちをまたぐ動作は必要ありません。直接、またはシャワーチェアーを利用することで、椅子に腰掛けるように簡単に移行がおこなえます。

FACILITIES

ゆったりとシニアライフを楽しんでいただくための
充実した館内設備で毎日悠々自適

トレーニング室

健康マシンを配置したトレーニング室

健康維持、介護予防などの観点から様々なトレーニング機器をご用意。
リハビリ台を使った理学療法士による個別のサポートも行っております。

シアタールーム

映画などを楽しんでいただける
シアタールーム

お好みの映画などを楽しんでいただける
シアタールーム。
全自動麻雀卓、囲碁将棋などの各種ゲームもご用意。

食堂

食堂

広々とした開放感のある空間で、毎日の「食」を楽しくサポートいたします。

ロビー

ロビー

ゆったりと落ち着いた雰囲気のロビーは入居者様の大切なコミュニケーションの場でもあります。博多湾を眺めながらの時間は、自然と会話も弾みます。

ロビーからの眺め

ロビーからの眺め

バルコニー前に望遠鏡を設置しております。和白干潟をゆったり一望できます。

ピアノ

ピアノ

ロビーにはピアノを置いております。ご入居様が練習されたり、音楽に触れ合う環境をご用意しております。

庭園

庭園

敷地内にはベンチや四阿(あずまや)のある遊歩道、花壇、菜園などを備えた「散策庭園」があります。四季折々に違った表情を見せる自然の緑を美しく保つために、園芸担当者が日々手入れを行っています。

家庭菜園

家庭菜園

家庭菜園での野菜づくりなど日々の生活を楽しむ環境も整っております。

お問い合わせ

お気軽にお問い合わせください

只今、サンケア和白ではご希望の方に資料の発送や、
施設の見学・体験入居をご提供しております。是非この機会にどうぞ。